North Star Vascular & Interventional Radiology began with a question that kept resurfacing:
Why does care so often feel rushed, impersonal, and harder than it needs to be, for patients and physicians alike?
Our founding physicians had spent years delivering high-level interventional care within complex healthcare institutions. While the medicine was advanced, the experience surrounding it often wasn’t.
We knew there had to be a better way to practice medicine, one that restored time, trust, and intention to patient care.

More Than a Clinic
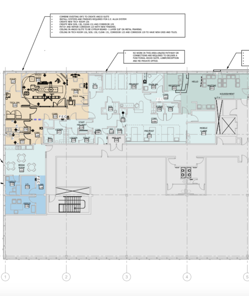
Every detail of North Star was planned intentionally. From the layout of procedure rooms to recovery areas and patient pathways, the space was designed to support outpatient vascular and interventional care without unnecessary friction or stress.
The result is an environment that feels calm, organized, and intuitive, one that allows both patients and care teams to focus on what matters most.

North Star was designed from the ground up for outpatient vascular and interventional care. Patient flow, staff workflows, and recovery needs were considered before walls were built or equipment was installed.

Procedure suites were constructed to support advanced image-guided technology and modern interventional workflows. The space was engineered to accommodate high-performance imaging systems and the precision they require.

From arrival to recovery, the environment is designed to feel organized, calm, and respectful of patients’ time. Clear layouts and dedicated recovery areas help reduce stress and create a more comfortable care experience.
Reimagining the Care Environment
Before & After: See how our purpose-built outpatient clinic was designed to improve comfort, efficiency, and patient experience.

Our Commitment Today
Today, North Star Vascular & Interventional Radiology continues to operate with the same principles that shaped its founding. We remain committed to minimally invasive, evidence-based care delivered with clarity, respect, and time.
We invest in advanced techniques, modern facilities, and a care model that values listening just as much as expertise. As healthcare continues to evolve, our commitment stays constant: to practice medicine in a way that feels personal, transparent, and grounded in trust.
Looking Ahead
As we move forward, we remain focused on expanding access to minimally invasive solutions while preserving the personalized approach that defines North Star.
We invite you to explore how our practice has grown and the values that continue to guide where we’re headed.
